Skip to main

Hoe een dubbelwandig schoorsteenkanaal inkorten?

Zowel de DHS als de Daanotherm dubbelwandige schoorsteenkanalen beschikken over de unieke mogelijkheid om ze in te korten. Deze dubbelwandige schoorsteenkanalen zijn eenvoudig op elk gewenste maat te maken door de binnenmantel te demonteren en vervolgens de binnen- en buitenmantel op de juiste maat in te korten. Hierdoor worden dure passtukken overbodig.

DHS Kanaal

Hieronder vind je de beschrijvingen van het inkorten van:

Inkorten dubbelwandig DHS schoorsteenkanaal

Een dubbelwandig DHS schoorsteenkanaal is vervaardigd uit een binnenbuis van 0,5 mm RVS 316, een buitenbuis van 0,5 mm RVS 304BA en een Rockwool geperste schaal isolatie van 25 mm dik.

Klik op de afbeeldingen om ze te vergroten.

1

Inkorten dubbelwandig DHS schoorsteenkanaal

2

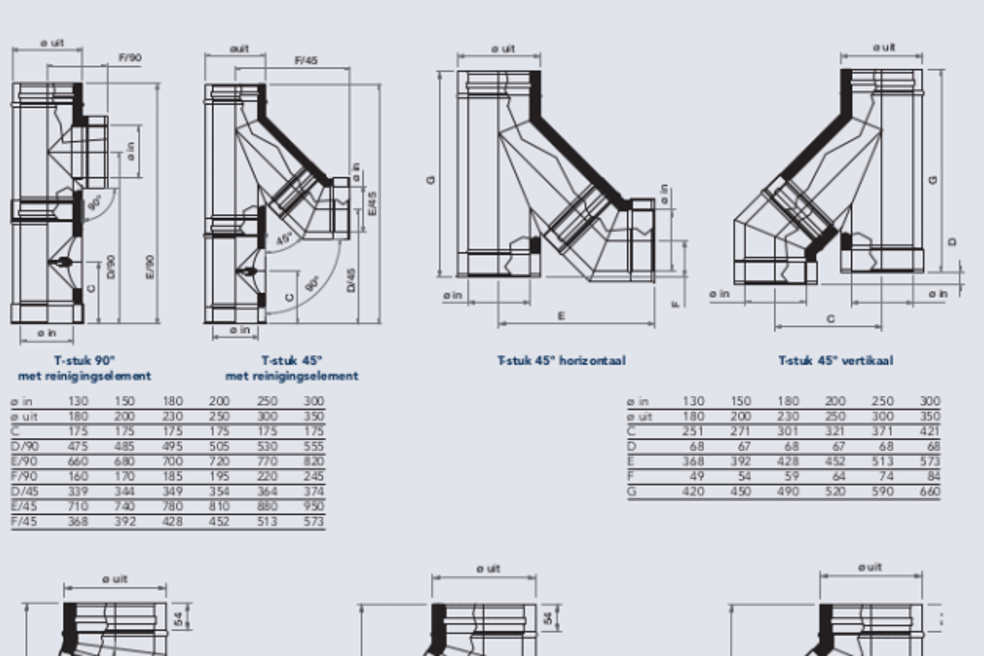
Technische specificaties

3

Schematische kanaalopbouw

Inkorten dubbelwandig Daanotherm schoorsteenkanaal

Een dubbelwandig Daanotherm schoorsteenkanaal is vervaardigd uit een binnenbuis van 0,5 mm 1.4521, een buitenbuis van 0,5 mm 1.4509 en een Rockwool geperste schaal isolatie van 25 mm dik.

Klik op de afbeeldingen om ze te vergroten.

1

Inkorten dubbelwandig DHS schoorsteenkanaal

2

Technische specificaties

3

Schematische kanaalopbouw